Aller au contenu
accueil
architecture
mais pas que!
à propos
contact
accueil
architecture
mais pas que!
à propos
contact
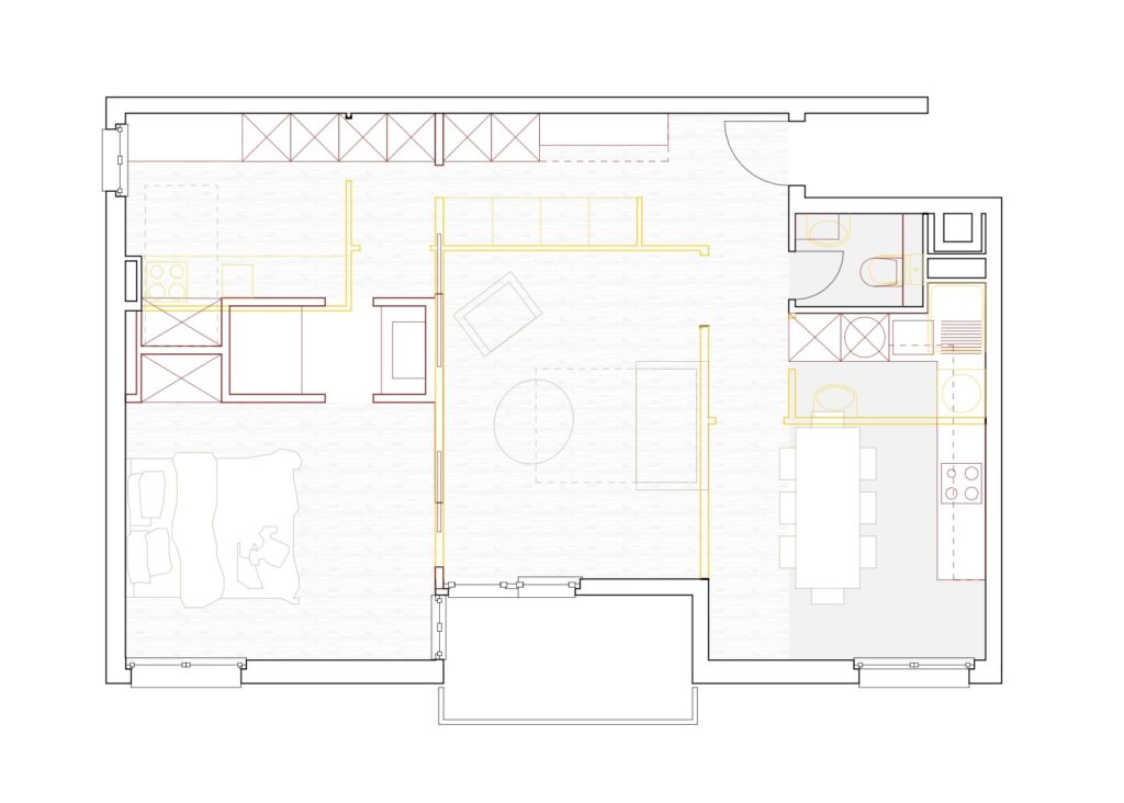
LUDO_appartement
réaménagement, d’un lieu de vie paraissant plus grand